Living area
About 143 m²
Plot area
About 231 m²
Construction year
Built in 1978
Number of rooms
6 rooms (5 bedrooms)

Heliotroopdijk 126

4706 JL, Roosendaal (Noord-Brabant)

Op zoek naar een instapklare woning met ruimte voor het hele gezin, een fijne tuin én volop comfort? Dan is deze woning aan de Heliotroopdijk 126 in Roosendaal precies wat je zoekt. Met vijf slaapkamers, een moderne halfopen keuken, een complete badkamer én vloerverwarming op de begane grond woon je hier heerlijk comfortabel. Dankzij de 12 zonnepanelen ben je ook nog eens duurzaam bezig. De zonnige tuin met overkapping maakt het plaatje compleet. Plan snel die bezichtiging in, dit wil je niet missen!

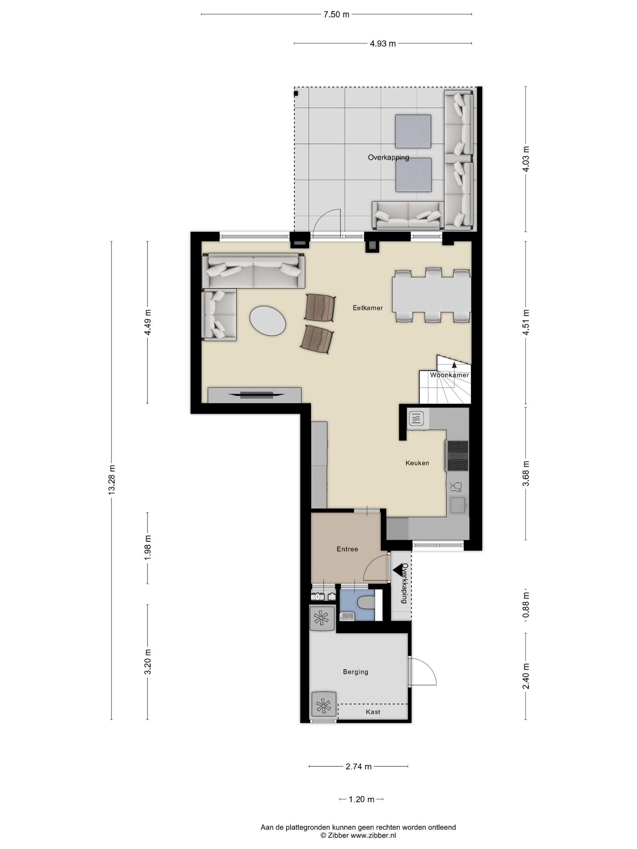
Entrée
Je komt de woning binnen via een verzorgde voortuin waar nu een speeltoestel staat, een fijne plek voor kinderen of om een zitje te creëren. De losse garage bevindt zich aan de voorzijde van het perceel, ideaal voor het parkeren of als extra opslagruimte. Aangrenzend aan de woning is een praktische aangebouwde berging, die alleen van buitenaf bereikbaar is. De entree zelf bestaat uit een nette hal met meterkast, toilet en toegang tot de woonkamer. De sfeer bij binnenkomst is direct prettig: licht, verzorgd en uitnodigend.

Living & Cooking
De woonkamer ligt aan de achterzijde van de woning en is heerlijk licht dankzij de grote raampartijen. Links vind je een fijne zithoek met uitzicht op de tuin, rechts is er ruimte voor een royale eettafel. De trap naar boven is subtiel opgenomen in de ruimte. Aan de voorzijde bevindt zich de halfopen keuken, uitgevoerd in wit met een opvallend zwart fornuis en afzuigkap. Je beschikt hier over veel opbergruimte én inbouwapparatuur: een oven, magnetron, koel-vriescombinatie, vaatwasser én een Quooker.

Sleep, Dream & Shower
Op de eerste verdieping vind je drie slaapkamers. De master bedroom aan de achterzijde is ruim genoeg voor een tweepersoonsbed en een grote kledingkast. De twee slaapkamers aan de voorzijde zijn compact, maar perfect als kinderkamer, werkkamer of logeerkamer. De badkamer is modern en compleet, met witte wandtegels en een antracietkleurige vloer. Je vindt hier een ligbad, inloopdouche, dubbele wastafel met meubel en een tweede toilet.

Second floor
Via de vaste trap kom je op de zolderverdieping. Hier is eerst een overloop met aansluitingen voor wasmachine en droger, gevolgd door nog twee ruime slaapkamers. Beide zijn voorzien van handige kastenwanden voor volop opbergmogelijkheden.

Gardening, Sunning & Enjoying
De achtertuin is heerlijk onderhoudsvriendelijk én gezellig. Direct aan de woning ligt een betegeld terras met overkapping, waar je een grote loungehoek kunt creëren. Verder is er een stuk kunstgras en zorgen drie boompjes voor een groene en beschutte sfeer, ideaal voor ontspannen zomeravonden!

Environment and Facilities
De woning ligt in een rustige, kindvriendelijke wijk in Roosendaal, met alle nodige voorzieningen dichtbij. Denk aan scholen, winkels, speeltuinen en openbaar vervoer. Je zit hier bovendien op korte afstand van het centrum én diverse uitvalswegen.

Atmosphere and Target Audience
De woning voelt modern, licht en warm aan. Dankzij de vijf slaapkamers en ruime indeling is dit het ideale huis voor gezinnen, thuiswerkers of mensen die gewoon graag veel ruimte om zich heen hebben.

Explanatory clause NEN2580:
The Measurement Instruction is based on the NEN2580. The Measurement Instruction aims to apply a more uniform method of measurement for indicating the usable surface area. However, the Measurement Instruction does not completely eliminate differences in measurement outcomes due to, for example, interpretative differences, rounding, or limitations in carrying out the measurement.

Floor plans

Transfer

Asking price
€ 430,000 netto
Status
Sold
Acceptance
In consultation

Construction

Object type
Single-family home, semi-detached house
Type of construction
Existing construction
Construction year
1978
Type roof
Rooftop covered with tiles

Area and content

Living area
143 m²
Plot area
231 m²
Contents
505 m³
External storage space
17 m²
Building-related outdoor area
22 m²

Classification

Number of rooms
6 rooms (5 bedrooms)
Number of bathrooms
1 bathroom
Bathroom facilities
Ligbad, toilet, wastafel, inloopdouche
Number of floors
3 residential levels
Provisions
Solar panels

Energy

Energy label
A
Energy label registration
10-05-2025
Isolation
Roof insulation, wall insulation, double glazing
Heating
Boiler, underfloor heating partially
Hot water
CV boiler
Boiler
Remeha gas gestookt uit 2014 (eigendom)

Outdoor space

Location
In residential area
Garden
Back garden, front garden

Mine space

Shed / storage
Attached stone

Garage

Type garage
Free-standing stone
Capacity
1 car

Parking facility

Type of parking facility
Public parking, on own premises

Energy consumption in Roosendaal

Energy label this property

Energielabel A

Energy label publication: 10-05-2025

Annual electricity consumption

2790 kWh

(Average semi-detached house in Roosendaal)

Annual gas consumption

1080 m³

(Average semi-detached house in Roosendaal)

* Figures are derived from CBS and are intended as an indication and may differ for this property

Mortgage costs indicator

Own contribution:
Savings / excess value

Interest:
Lowest 10-year interest rate

Lowest 10-year interest rate

2,78% - Centraal Beheer - NHG


3,04% - Centraal Beheer - 80%

Lowest 20-year interest rate

3,29% - Centraal Beheer - NHG


3,52% - Centraal Beheer - 80%

Lowest 30-year interest rate

3,41% - Centraal Beheer - NHG


3,7% - Argenta - 80%


Mortgage:

Gross monthly expenses: € 0 p/m

Net monthly expenses: € 0 p/m

How do we calculate this?

The interest rate is based on the lowest 10-year fixed rate for a single mortgage part. The stated rate (3.04% zonder NHG) was verified on 27-04-2026. This calculation is based on an annuity mortgage that is fully repaid, with monthly payments remaining the same throughout the entire term. The actual interest rate and net monthly costs may vary depending on your personal situation and the mortgage provider. Consult a financial advisor for an accurate calculation and advice. No rights can be derived from this calculation; it is for indicative purposes only.

Documentation

Viewing solar limits

On the map

Residents of Roosendaal

Statistics for postal code area 4706

Total number of inhabitants
11315 residents
Men
49%
Women
51%

Residents of Roosendaal

Statistics for postal code area 4706

until 15 years
16%
15 to 25 years
11%
25 to 35 years
20%
45 to 65 years
30%
65 and older
22%

Households in Roosendaal

Statistics for postal code area 4706

Single without children
26%
Multiple persons without children
35%
Households without children
61%

Households in Roosendaal

Statistics for postal code area 4706

Households with one child
8%
Households with multiple children
31%
Households with children
39%

Homes in Roosendaal

Statistics for postal code area 4706

Housing for 1945
2%
Houses between 1945 and 1965
1%
Houses between 1965 and 1975
6%
Houses between 1975 and 1985
68%
Houses between 1985 and 1995
4%

Homes in Roosendaal

Statistics for postal code area 4706

Homes between 1995 and 2005
9%
Homes between 2005 and 2015
10%
Homes after 2015
1%
Rented apartments
30%
Purchase properties
70%

Other income Roosendaal

Statistics for postal code area 4706

Average WOZ value
€ 263.000,-
People under 65 with disability benefits
8%

Other income Roosendaal

Statistics for postal code area 4706

Addresses per square kilometer
1326
"Urbanity (scale 1 to 5)"
60%
Postcode kaart 4706 Gemeente kaart roosendaal

If you have questions or would like to schedule a viewing, you can use the form on the right. You will then be contacted shortly thereafter.

Experts with a passion for real estate

At C&R Real Estate, everything revolves around you and your home. We are a fresh, energetic generation of real estate agents with a passion for people and the housing market.

We believe in a personal approach without fuss: honest, transparent, and always with a healthy dose of enthusiasm. Selling your home is an important step, and that's why we guide you in a way that suits you, from start to finish.

With our in-depth knowledge of the local market, we provide you with valuable advice that perfectly fits your situation and that of potential buyers.

In addition, our creative team of real estate marketers is ready to put your home in the spotlight. With smart and thoughtful strategies, we ensure that your house stands out and achieves the maximum results.

Your satisfaction is our ultimate goal. We put everything into exceeding your expectations. Curious about our team? Click the button below and get to know us!

Experts with a passion for real estate
Reviews C&R Makelaars

Heliotroopdijk 126, Roosendaal

€ 430,000 netto - Sold

Helaas, deze woning is verkocht!

Net te laat, deze woning is al verkocht. Laat een zoekopdracht bij ons achter zodat wij u direct kunnen helpen wanneer er nieuw aanbod beschikbaar komt.